130 mq
3
2
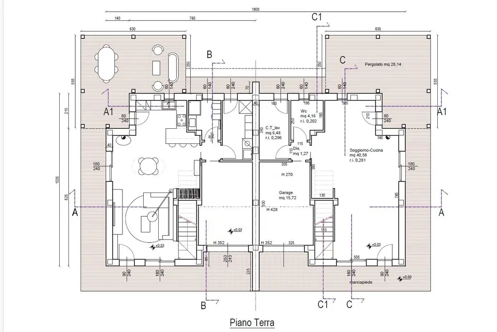
Garage/Posto Auto
Giardino privato
Autonomo
A1

Descrizione

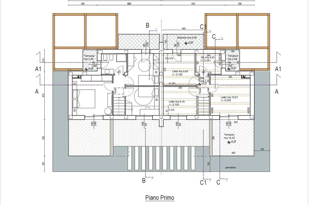
Rif. 114. - Vendiamo a Ronta di Cesena, vicino a tutti i principali servizi del paese, villa bifamiliare di nuova costruzione. L'abitazione è dotata di ingresso indipendente con giardino privato in cui posteggiare comodamente l'auto. Al piano terra troviamo un luminoso soggiorno con angolo cottura, disimpegno, bagno, garage annesso e un ampio pergolato. Al primo piano sono presenti tre camere da letto, disimpegno e bagno. La villetta si contraddistinguerà per stile, qualità nella scelta dei materiali e ottimizzazione degli spazi, verrà realizzato in classe energetica A. Consegna stimata fine 2026. Soluzione residenziale davvero ottimale, comoda a tutti i servizi. Rif. 114

Altre caratteristiche

Vani
4
Tipo di cucina
Angolo Cottura
Balconi
1
Terrazze / Logge
1
Piano
Terra
Tipologia Immobile
Villa abbinata
Categoria Immobile
Case e Appartamenti
Contatta Agenzia
Proposto da: AGENZIA BARBIERI CERVIA

Quotazioni immobiliari per Via Ravennate 6500 - Cesena